我认为现在的住宅装饰装修主要分三类:一是精装修(以前叫全装修)房;二是毛坯房装修或者是既有房的改造;三是独立式住宅(包括少量的别墅)装修。针对第一类的装饰装修,解决好集成化、装配化问题,是一个重要课题,需要在过程中解决好标准化、集成化、装配化问题,强调建筑、结构、设备、装修、部品等工程的协同配合,并以现代的类似机械制造并联式设计模式,替代传统的串联式设计流程。第二类的装修风格各异,大多会采用湿作业的施工方式。第三类装修将会继续注重风格多样化和个性问题,设计师在其中有个性的发挥余地。

A 户型方案透视效果图
设计时间:2009 年 3 月
主案设计:高祥生
参与设计:曹莹、吴俞昕、雷雨、李桢、安婳娟
装饰制图:王勇、许琴、李君英等
水电设计:吴杰
设计风格:现代简约
工程规模:31754 ㎡
(一)工程概况
该项目所处的地理位置优越,是该区域的标志性建筑之一。业主希望通过精装修设计施工,将其打造成为该区域的精品公寓。项目总建筑面积约 31754m²。地上 17 层,其中 1 ~ 3 层为商业用房,4 ~ 17 层为公寓式住宅,地下 2 层为车库。
建筑结构为框架剪力墙结构,在工程中采用地源热泵中央空调系统,空调末端采用风机盘管,以期达到环保节能的效果。
公寓式住宅部分的精装修设计内容为:标准层单元各户型的精装修方案设计和施工图设计;标准层门厅、电梯间、楼梯间、内走廊等公共部位的装饰方案和施工图设计;标准层单元内的给水、排水、电气、弱电(含通信、电视、网络)、空调等方案和施工图设计;精装修标准户型的样板房装饰及陈设方案设计。


户型分析表格
(二)设计理念
该项目为商业、公寓式住宅为一体的商住两用性质,设计中将公寓楼主要的户主群设定为两类 : 一类是年轻且具有一定文化水平的白领阶层,另一类是位于该项目附近长驻的外地商业人士。在研究这两类对象生活形态的基础上,设计思路并没有从居家型住宅的角度出发,而是从时尚、高品位的酒店式公寓的角度展开。
根据该项目的工程特点和客户群的需求,在方案设计中,贯彻了现代简约装修、充分利用空间、重视人性关爱、土建装修一体化的设计理念。
1. 现代简约装修
简化装修界面的设计内容,有利于业主入住后选用不同的陈设品表现不同的风格。
2. 充分利用空间
利用家具、电器、构件等作为组织空间的元素,既可以充分地利用空间,又可以使小户型的空间获得开敞的效果。
3. 重视人性关爱
在研究人体尺寸与家具、配饰之间关系的基础上,严格把握尺度关系 , 使其更加符合人体使用的需求,以求最大限度地做到功能设置的周密性和精细化。
4. 土建、装修一体化
在装饰方案的设计过程中,由于建筑设计处于扩初阶段,尚可做一定调整的情况,设计时对建筑设计的部分内容提出修改意见,如缩小管道井的面积,调整入户门的位置,扩大厨房的面积以及减小客卫的面积等,为土建设计单位完善建筑设计提出建设性的意见。
A 户型平面方案分析(1 室 1 厅 1 卫 1 厨)
A 户型的使用面积为 35 ㎡,设计方案将使用对象确定为年轻的单身白领、情侣 , 或者长驻的外地商务人士等人群,使用人数一般为 1 ~ 2 人。

A 户型平面方案一
方案说明
(1)划分出客厅、卧室、卫生间、厨房四个空间。
(2)增加空间渗透感。卫生间隔墙采用玻璃。
(3)选用矮柜分隔卧室客厅,以改善小户型的室内采光。
(4)将固定家具模数化组合设计,提高空间利用率。

户型分析表格

A 户型平面方案二
方案说明
(1)取消餐厅,将功能整合在客厅中。
(2)抬升局部地面,铺设不同的材质,对卧室与客厅进行分隔 , 使空间层次关系清晰。
(3)扩大卫生间的面积,调换梳洗台与坐便器位置,使其更符合人体活动规律。
(4)针对两类主要设计对象,选用圆形的床、沙发和茶几;利用不规则形体的柜子优化平面形态。

户型分析表格

A 户型平面方案三
方案说明
(1)取消客厅,将功能赋予餐厅中。
(2)扩大卫生间面积,调换梳洗台与坐便器的位置,使其更符合人体活动规律。

户型分析表格
A 户型设计分析

室内功能分析图

交通流线分析图

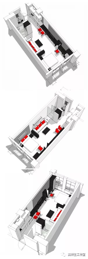
A 户型方案一轴测图

人体工程学分析图 A

人体工程学分析图 B

A 户型方案二轴测图

A 户型方案一右剖切效果图

陈设品展示

透视角度图

A 户型方案一左剖切效果图
方案说明
运用了简约的现代风格,力求展现出时尚、现代、高品位的公寓式住宅的形象。形体上,利用块面的分割、叠加以及直线条的穿插与渗透等。
色彩上,利用界面上的浅色系使整个小户型的空间获得开敞的效果,同时利用家具和配饰上的色彩活跃整个空间的气氛。
材质上大多选用木质材料,如防火板、木饰面、木地板等。同时利用小面积的带有反射效果的材料,如黑色背漆玻璃、不锈钢等,与大面积的木质材料形成对比,丰富空间的层次感。
B 户型平面方案分析(2 室 2 厅 1 卫 1 厨)
B 户型的使用面积为 55 ㎡,设计中将住户仍假定为年轻的单身白领、情侣,或者长驻的外地商务人士等,使用人数一般为 1 ~ 2 人。

B 户型平面方案一
方案说明
(1)合理划分客厅、主卧、书房兼次卧、卫生间、厨房和餐厅六个空间。
(2)将冰箱与洗手台组合在家具中,保证厨房的使用面积。
(3)用组合衣柜和矮柜分隔客厅、卧室与书房,力求在改善采光和通风的同时保证空间开敞。

户型分析表格

B 户型平面方案二
方案说明
(1)通过平立面加入曲线,彰显个性的色彩。
(2)划分客厅、主卧、书房兼次卧、卫生间、厨房和餐厅六个空间。
(3)用玻璃和曲线形矮柜分隔客厅、卧室与书房,力求在改善采光和通风的同时保证空间开敞。

户型分析表格

B 户型平面方案三
方案说明
(1)合理划分客厅、主卧、书房兼次卧、卫生间、厨房和餐厅六个空间。
(2)用玻璃和曲线形矮柜分隔客厅、卧室与书房,力求在改善采光和通风的同时保证空间开敞。
(3)提高空间使用,以通透隔断保证视线开敞。

户型分析表格




B 户型设计分析

室内功能分析图

交通流线分析图

立面透视图

人体工程学分析图 A

人体工程学分析图 B

B 户型轴测图

B 户型轴测图

B 户型轴测图
方案说明
在装饰风格上,运用了简约的现代风格。形体上,大胆地运用了曲线形和弧线形,如家具、界面上的装饰等。
色彩上,利用小面积的桃红色和大面积的白色形成强烈的对比,不仅使整个小户型的空间获得开敞的效果,而且活跃了该空间的气氛。
材质上,多选用木质材料,如防火板、木饰面、木地板等。




